Bố trí nội thất tiện nghi và lịch sự cho căn hộ có diện tích 45m2

Admin

Chỉ với những thay đổi rất nhỏ, kiến trúc sư đã tư vấn bố trí nội thất cho căn hộ 45m2 trở nên tiện nghi và lịch sự hơn rất nhiều.

Em vừa mua căn hộ 45m². Anh chị có thể tư vấn giúp em cách bố trí nội thất cho hợp lý được không?

Thanh Hương

Kiến trúc sư tư vấn:

Dựa theo những thông tin mà bạn cung cấp và yêu cầu thiết kế cho ngôi nhà, chúng tôi xin đưa ra phương án mặt bằng tư vấn để bạn tham khảo.

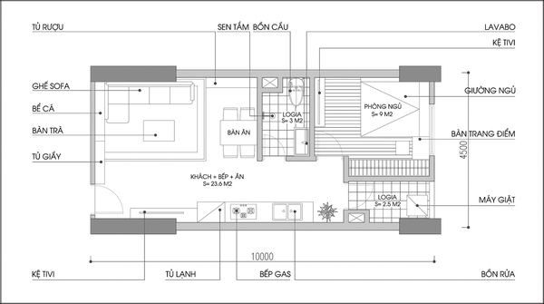
Bố trí nội thất cho căn hộ có diện tích 45m² cho cô gái độc thân - Ảnh 1.

Mặt bằng tư vấn.

Theo mặt bằng hiện trạng, có thể thấy cách xử lý các không gian trong căn hộ của bạn đã khá hợp lý, tuy nhiên cách bố trí đồ nội thất vẫn chưa được khoa học và độc đáo. Vậy nên theo mong muốn yêu cầu của bạn thì chúng tôi sẽ đưa ra phương án là bố trí tủ rượu, bể cá và tủ giày trong phòng khách, thay đổi lối ra vào cho nhà vệ sinh và bố trí lại cách đặt giường trong phòng ngủ. Những cách thay đổi này sẽ làm cho căn hộ của bạn thêm độc đáo và tiện ích hơn rất nhiều.

Không gian sinh hoạt chung gồm phòng khách, bếp và ăn vẫn được giữ nguyên. Phòng khách tương đối nhỏ, bạn nên chọn những bộ sofa chữ L sáng màu nhã nhặn, sẽ tạo cho không gian thoáng và rộng hơn. Sát với cửa ra vào được bố trí tủ giầy và bể cá sẽ làm cho không gian phòng khách thêm sinh động, bàn ăn được kê sát tường cùng phía với ghế sofa, bên cạnh đó sẽ được bố trí tủ rượu tạo cảm giác ấm cúng hơn.

Tủ bếp dài chữ I áp sát tường sẽ giúp tiết kiệm diện tích, tạo ra 1 khoảng không gian rộng dọc từ cửa vào, giúp giao thông dễ dàng và mạch lạc hơn. Vệ sinh cũng được giữ nguyên và có 1 chút thay đổi nhỏ là đổi ngược vị trí cửa sang bên trái sẽ làm cho không gian vệ sinh tiện nghi và lịch sự hơn. Cạnh khu vực bếp, gần lối ra ban công, bạn có thể bố trí những chậu cây cảnh nhỏ giúp căn hộ trở nên tươi mát và hòa cùng với thiên nhiên.

Không gian phòng ngủ được bố trí những đồ nội thất cơ bản như giường ngủ đôi, tủ quần áo, bàn trang điểm và tủ tivi. Bạn nên xoay đầu giường hướng về phía cửa sổ, bên cạnh là bàn trang điểm, tiếp đó là tủ quần áo được bố trí âm tường, cách thay đổi nhỏ này sẽ giúp cho căn phòng trở nên rộng rãi và không gian thoáng hơn.

Ngoài ra sử dụng những đồ decor độc đáo và lạ mắt, giấy dán tường họa tiết nhẹ nhàng cũng sẽ giúp cho căn phòng trở nên ấm cúng và thân thiện.

Hy vọng với phương án bố trí này sẽ đáp ứng được tiện nghi cũng như nhu cầu sinh hoạt của bạn và gia đình. Sau đây là một số hình ảnh tham khảo giúp bạn hình dung không gian sống của mình được tốt hơn.