Vợ chồng bán hết vàng cưới, gom được 1 tỷ xây nhà báo hiếu bố mẹ, thành quả bất ngờ

Admin

Được vợ ủng hộ, anh Tùng gom số tiền bán vàng cộng thêm khoản tiết kiệm chắt bóp trong mấy năm, xây cơ ngơi khang trang cho mẹ già ở quê.

Căn nhà tổ chật chội nhưng nhiều kỷ niệm

Ước mong xây nhà cho bố mẹ đã được anh Nguyễn Tùng ấp ủ từ khi còn đang đi làm ở Hà Nội. Anh Tùng muốn xây cho bố mẹ một ngôi nhà nhỏ trên đất của các cụ để lại (ở Hà Nam), ngôi nhà chỉ một tầng để bố mẹ không phải leo lên cầu thang và để đại gia đình có thể quây quần mỗi khi có ngày cúng giỗ, lễ tết.

Thêm vào đó, hiện trạng căn nhà đã xuống cấp ít nhiều. Trước khi phá thì phần gian trong của ngôi nhà đang được cho số ít công nhân thuê ở.

Vợ chồng bán hết vàng cưới, gom được 1 tỷ xây nhà báo hiếu bố mẹ, thành quả bất ngờ - Ảnh 1.
Vợ chồng bán hết vàng cưới, gom được 1 tỷ xây nhà báo hiếu bố mẹ, thành quả bất ngờ - Ảnh 2.

Căn nhà trước và sau khi xây dựng lại

Mong muốn ấp ủ từ lâu nhưng anh Tùng quyết định nhanh chóng, lên kế hoạch thiết kế trước 3 tuần khởi công.

“Bố mẹ bảo mình, con làm gì có tiền mà xây, nhà mình vẫn có chỗ ở. Nhưng thú thực trong lòng mình biết bố mẹ mình thích lắm, vì ngôi nhà mới xây trên đất tổ của các cụ, không khí không bị bụi bặm như ngoài đường quốc lộ, gần nhà thờ, gần dòng Đáy quanh năm nước trong mát”, anh Tùng cho biết.

Ngồi nhà mới được anh Tùng phác thảo theo phong cách hiện đại, tiêu chí dựa trên sự đơn giản, tối ưu chi phí. Không gian sử dụng theo hai tone màu chính là nâu đất, trắng sứ.

Vợ chồng bán hết vàng cưới, gom được 1 tỷ xây nhà báo hiếu bố mẹ, thành quả bất ngờ - Ảnh 3.
Vợ chồng bán hết vàng cưới, gom được 1 tỷ xây nhà báo hiếu bố mẹ, thành quả bất ngờ - Ảnh 4.

Anh Tùng lên kế hoạch thiết kế trước 3 tuần khởi công

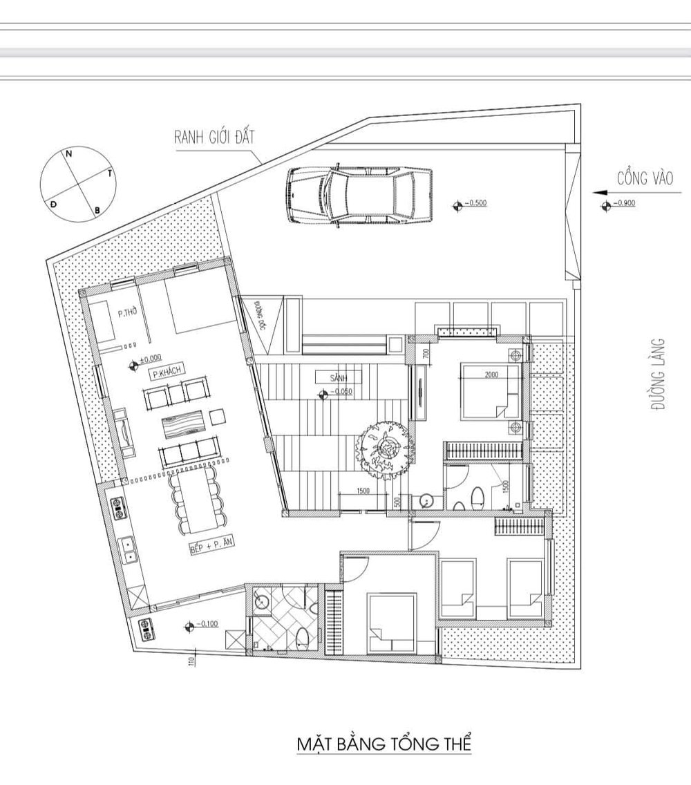
Phần mặt bằng không gian, anh Tùng phác thảo dưới sự hướng dẫn của KTS Hiệp Bùi; căn nhà được phân khu: 3 phòng ngủ 1 khu, 1 khu để làm gian thờ, còn phòng khách và bếp liên thông như các căn hộ chung cư. Khu sảnh kết nối giữa các không gian được thiết kế lấy trọn ánh sáng tự nhiên, tận dụng luôn làm khu tổ chức ăn uống ngoài trời. Ở khu sảnh này, anh Tùng còn trồng thêm một cây vú sữa với ý nghĩa về tình mẫu tử.

Ngoài ra, căn phòng mà cụ bà ở sẽ có cửa sổ to hướng ra đường làng để cụ có thể nói chuyện và nhìn người đi qua lại. Cây bưởi được cụ ông trồng hơn 30 năm cũng được hai vợ chồng giữ lại tạo không gian xanh mát cho ngôi nhà.

Vợ chồng bán hết vàng cưới, gom được 1 tỷ xây nhà báo hiếu bố mẹ, thành quả bất ngờ - Ảnh 5.
Vợ chồng bán hết vàng cưới, gom được 1 tỷ xây nhà báo hiếu bố mẹ, thành quả bất ngờ - Ảnh 6.
Vợ chồng bán hết vàng cưới, gom được 1 tỷ xây nhà báo hiếu bố mẹ, thành quả bất ngờ - Ảnh 7.
Vợ chồng bán hết vàng cưới, gom được 1 tỷ xây nhà báo hiếu bố mẹ, thành quả bất ngờ - Ảnh 8.

Không gian thoáng mát, tận dụng ánh sáng thiên nhiên

Con trai tích tiền, bán vàng cưới, xây nhà báo hiếu

Bất cứ công trình thi công nào cũng gặp không ít khó khăn. Với anh Tùng, vì đang làm việc và sinh sống ở Hà Nội nên việc di chuyển qua lại với Hà Nam tốn không ít thời gian. Hơn nữa, thợ ở quê không hiểu hết ý đồ thiết kế, anh Tùng ở thành phố cả tuần mới về một lần nên nhiều công đoạn phải sửa, các chi tiết có một số thứ chưa đúng như ý muốn.

Tuy nhiên, về tổng thể, phần thô, phần sơn, nội thất, đồ gỗ trong nhà đều được thi công và hoàn thành đúng tiến độ và giống với phác thảo ban đầu. Căn nhà được xây từ tháng 9/2022, hoàn thành xong trước dịp Tết nguyên đán vừa qua. Tổng kinh phí xây dựng dự kiến ban đầu là 900 triệu. Song khi hoàn thiện, do gạch ốp lát mua đắt hơn, đồ gỗ đắt hơn nên chi phí bị đội lên 1,1 tỷ.

Vợ chồng bán hết vàng cưới, gom được 1 tỷ xây nhà báo hiếu bố mẹ, thành quả bất ngờ - Ảnh 9.
Vợ chồng bán hết vàng cưới, gom được 1 tỷ xây nhà báo hiếu bố mẹ, thành quả bất ngờ - Ảnh 10.

Chi phí xây dựng căn nhà bị đội lên 1,1 tỷ


Vợ chồng bán hết vàng cưới, gom được 1 tỷ xây nhà báo hiếu bố mẹ, thành quả bất ngờ - Ảnh 11.

Căn nhà được trang trí ấm cúng


“Thực tế số tiền mình tích góp chủ yếu là từ việc tiết kiệm của hai vợ chồng. Trong quá trình hoàn thiện, mình phải trao đổi với vợ bán hết vàng cưới và hiện tại mình vẫn còn vay của chị gái để lo vấn đề kinh phí”, anh Tùng cho biết.

Xung quanh nhà, anh Tùng trồng thêm các loại hoa, cây cảnh, tạo không gian xanh chan hòa, ấm áp. Ngày bước vào căn nhà thơm mùi sơn mới, cảm xúc của anh Tùng lâng lâng, khó tả.

“Không tin là đã xây cho bố mẹ được căn nhà. Bố mẹ cũng bảo, không tin là dịp Tết này lại được ở nhà tổ xây mới hiện đại, đẹp đến vậy. Vì quả thực, kế hoạch ban đầu không phải xây năm nay. Mình chỉ chốt trước đúng 3 tuần, mọi người đều bất ngờ.

Dù còn khó khăn nhưng vợ chồng mình hạnh phúc, vợ mình cũng đồng lòng trong việc xây nhà cho bố mẹ và cụ. Cứ dịp cuối tuần không bận, vợ chồng lại về quê và coi như là đi nghỉ dưỡng, ở đó gần sông, không khí trong lành. Con nhà mình về nghỉ Tết mà hết ho với sổ mũi luôn. Cụ mình ở cùng mẹ, thi thoảng trêu, cụ có thích ở đây không, cụ bảo nhà mới ai chẳng thích. Vì về đúng nơi cụ đã ở từ năm 1950…”, anh Tùng bộc bạch.

Vợ chồng bán hết vàng cưới, gom được 1 tỷ xây nhà báo hiếu bố mẹ, thành quả bất ngờ - Ảnh 12.

Căn nhà là nơi đại gia đình quây quần mỗi dịp lễ tết


Vợ chồng bán hết vàng cưới, gom được 1 tỷ xây nhà báo hiếu bố mẹ, thành quả bất ngờ - Ảnh 13.
Vợ chồng bán hết vàng cưới, gom được 1 tỷ xây nhà báo hiếu bố mẹ, thành quả bất ngờ - Ảnh 14.

Căn nhà là nơi đại gia đình quây quần mỗi dịp lễ tết