Chuyên mục thân mến!
Gia đình tôi có dự định xây nhà trên mảnh đất có diện tích 4m x 5,2m. Tôi muốn xây nhà gồm tầng trệt là phòng khách + WC. Tầng 1 bếp + bàn ăn (thiết kế nấu ăn thoát được mùi). Tầng 2: 1 phòng ngủ + WC trong phòng. Tầng 3: 2 phòng ngủ + 2 WC mini. Sân thượng: Trước phòng thờ. Sau máy giặt + sân phơi.
Mong các KTS tư vấn thiết kế giúp để gia đình tôi có ngôi nhà hiện đại, thoải mái.
Chân thành cảm ơn!
Kiến trúc sư tư vấn:
Dựa theo những thông tin mà bạn cung cấp và yêu cầu thiết kế cho ngôi nhà, chúng tôi xin đưa ra phương án mặt bằng tư vấn thiết kế để bạn tham khảo.

Mặt bằng tầng trệt và tầng 1.

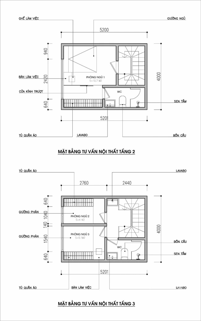
Mặt bằng tầng 2 và 3.

Mặt bằng tầng tum.
Mảnh đất của bạn có diện tích là 20,8m², ưu điểm của mảnh đất này là khá vuông vức. Vì vậy không khó để có thể tạo ra 1 không gian sống dễ chịu và tiện nghi. Theo yêu cầu và mong muốn của bạn đề ra thì chúng tôi đưa ra phương án là làm 4 tầng 1 tum thì sẽ rất hợp lý, vừa tiết kiệm được chi phí, vừa sử dụng đầy đủ công năng.
Nhìn vào mặt tiền ngôi nhà thì cửa vào sẽ ở phía bên phải. Bước vào bên trong đầu tiên là sảnh, KTS khéo léo bố trí một khoảng sân nhỏ để xe máy, ở khoảng sảnh này sẽ được bố trí tủ giày thấp. Cạnh không gian sảnh là vệ sinh nhỏ, trong phương án này, KTS đã đẩy hết thang và vệ sinh về phía sau cùng của ngôi nhà, khoảng không gian thoáng và đẹp nhất sẽ dành cho những phòng sinh hoạt chính như khách, ăn, bếp và ngủ.
Đi vào phía trong là phòng khách nhỏ xinh, đầy đủ công năng như ghế văng, armchair thư giãn, bàn trà và kệ tivi, điểm thêm một vài cây cảnh thêm sinh động. Từ phòng khách nhìn ra phía mặt tiền cũng được bố trí cửa sổ thoáng phía trên cao để lấy ánh sáng tự nhiên bên ngoài, rất thông thoáng. Với thiết kế này, KTS vẫn tạo ra thêm được 1 kho nhỏ dưới gầm thang cho chủ nhà để đồ hoặc máy bơm trong đó.

Không gian phòng khách nhẹ nhàng, tinh tế.

Sử dụng đồ nội thất đơn giản, nhỏ xinh.
Lên tầng 2 là không gian ăn và bếp, ở tầng này, ngoài không gian ăn và bếp ra, KTS cũng bố trí thêm một vệ sinh nữa sẽ rất tiện ích cho mọi người trong nhà. Không gian phòng không lớn, vì vậy nên sử dụng những đồ nội thất sáng màu, hệ tủ bếp và bàn ăn có thể sử dụng tone màu trắng hoặc màu gỗ sồi để không gian không bị nặng nề, luôn có cảm giác rộng rãi và thông thoáng.

Hệ tủ bếp chữ I tone màu trắng với đầy đủ công năng.

Không gian ăn và bếp liên thông, rộng rãi và thoáng đãng.
Tới tầng 3 là dành cho phòng ngủ master, tầng này KTS sẽ bố trí phòng ngủ to kết hợp vệ sinh rộng rãi phía trong. Căn phòng có hệ cửa sổ lớn, đón trực tiếp ánh sáng tự nhiên, hệ bàn làm việc và đầu giường áp sát phía cửa sổ, khu vực này bố trí rèm linh động sẽ tiện lợi hơn khi làm việc hoặc khi ngủ của chủ nhà. Vệ sinh của phòng này sẽ to hơn vệ sinh 2 tầng dưới, có đầy đủ công năng như lavabo, bồn cầu và phòng tắm kính.

Phòng ngủ sử dụng tone màu trắng xanh, bố trí gần cửa sổ để đón nhiều ánh sáng tự nhiên.
Lên tới tầng 4, theo chủ nhà mong muốn là bố trí 2 phòng ngủ và 2 vệ sinh mini. Với diện tích đất sử dụng hiện có và theo mong muốn của chủ nhà đưa ra thì KTS sẽ tư vấn là vẫn bố trí được 2 phòng ngủ nhỏ và 1 vệ sinh chung cho 2 phòng, thêm vào đó sẽ có 1 lavabo nữa ở phía ngoài để tiện việc sinh hoạt cá nhân như rửa mặt mũi, đánh răng, hoặc rửa tay.
Theo phương án này là khá hợp lý và sát với yêu cầu của chủ nhà đưa ra. Ngoài ra, về phía phòng ngủ, KTS tư vấn chủ nhà sử dụng giường phản bệt kết hợp liền với tủ quần áo sẽ tiết kiệm triệt để không gian và vẫn đầy đủ công năng của mỗi phòng.

Giường phản bệt kết hợp liền tủ quần áo.

Phòng ngủ cho bé với hệ kệ giường đa năng.
Tầng trên cùng sẽ chia làm 2 không gian, phía trước sẽ là phòng thờ, phía sau sẽ để máy giặt và sân phơi, có mái che kính rất tiện lợi, không ảnh hương mưa gió thời tiết xấu.

Phòng thờ trang nghiệm với tone màu trầm.

Vệ sinh sạch sẽ, khô thoáng.